Här kan du konfigurera ditt E-kedjesystem individuellt. Alla uppgifter och ändringar läggs till i stycklistan, som finns längst ner på sidan.
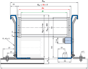
Serie 601 - E-kedja med tvärslåar i varannan länk.
1. e-kedjans tvärslåar kan tas ut på båda sidor.
2. e-rörets lock kan svängas upp
och tas ut.
3. Stopp med "broms"
för ljudreducering.
4. Breda tvärslåar av plast - kabelvänligt.
5. Optimerade glidytor
med slitmån i sidan.
6. Variationsrik inre avdelning.
7. Slutna och öppna partier kan kombineras.
8. Smutsavvisande ytterkontur.
9. Kan även levereras med böjningsradie bakåt/åt båda hållen RBR!