Här kan du konfigurera ditt E-kedjesystem individuellt. Alla uppgifter och ändringar läggs till i stycklistan, som finns längst ner på sidan.
Serie R780 - Rör, stängd
1. e-kedjans tvärslåar kan lossas på båda sidor
2. Stopp med "broms" för ljudreducering
3. Slutna och öppna partier kan kombineras
4. e-rörens lock är sväng- och uttagbara
5. Variationsrik inre avdelning
6. Optimerade glidytor - slitmån på sidan
7. Breda tvärslåar av plast - kabelvänligt
8. Dragavlastning kan integreras i monteringsfästet
9. KMA-monteringsfästen med
fästmöjlighet "runt om"
10. Monteringsfästen finns i styvt eller pendlande utförande
E4/00-NC = e-kedjan finns även utan förspänning
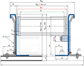
Tillgängliga innerbredder Bi: 50 till 300 mm
Tillgängliga böjningsradier R: 125 till 350 mm
Delning: 67 mm/länk = 15 länkar/m.